En este artículo puede comprobar cómo se puede trabajar con diagramas de bloques en E3.series. Vea el artículo completo y aprenda cómo optimizar sus procesos con las funcionalidades inteligentes del módulo E3.cable de E3.series 2021.
.jpg?width=743&height=418&name=Untitled%20presentation%20(29).jpg)
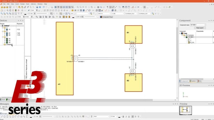
Los bloques se agregan dinámicamente a la hoja de diseño con el botón "Insert Block" y el ajuste de tamaño de cada dispositivo en la hoja se realiza con la ayuda de marcas en las esquinas del dibujo. Los bloques se renombran y se actualizan automáticamente en el árbol de dispositivos. Luego, los conectores se agregan a través de la opción "Place Receptacle Single Pins" en la biblioteca.

Las conexiones se realizan mediante la tecla "C" y, de forma inteligente, la serie E3.series presenta el plug correspondiente.

Al seleccionar el componente en la biblioteca, puede obtener una vista previa de la pieza seleccionada. Al final, los elementos agregados a los bloques se insertan entre ellos en el árbol de componentes y se pueden visualizar en el esquema a través de la opción "Jump".
¡Pruebe AHORA la herramienta de la serie E-CAE E3.series líder en la industria en el mundo con cursos de capacitación técnica!
Haga clic en el banner a continuación:
Vea el video completo a continuación:
Suscríbase a nuestro canal de Youtube aquí para ver más videos técnicos.
Pruebe E3.series de acuerdo con su demanda usando el botón a continuación:











